Hulp gevraagd bij verbouwing kleedruimtes
Gisteren - 11:36
Beste allemaal,
Zoals bij de meeste van jullie bekend worden deze winter de kleedruimtes verbouwd.
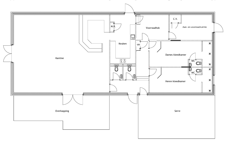
We hebben in overleg met de gemeente besloten ook de indeling te veranderen. Dat betekend dat het zowel de heren- alsook de dames kleedkamer een rechte ruimte wordt. Doordat het bergingshok met de wateropslag verplaatst wordt (zit nu voor de heren kleedkamer) verliezen we niet heel veel ruimte ruimte in beide kleedkamers. We krijgen wel een groter voorraad- en aanvoerruimte hiervoor terug.
Zie tekening.

Om dit te realiseren hebben we met de gemeente afgesproken dat we een aantal werkzaamheden zelf uit voeren.
O.a. verplaatsen wateropslagtank, berging leegruimen, demontage banken, plafonds en tussenwanden slopen, muurtjes metselen, deuren verplaatsen, etc. Tevens willen we onze club wat duurzamer en toekomst bestendig maken.
De plafonds in de kleedruimte worden voorzien van isolatie, ons dak wordt van buiten uit gerenoveerd/vernieuwd en we zijn bezig met zonnepanelen en batterij opslag. Ook willen we ons park van camera bewaking voorzien en een nieuwe fietsenstalling maken met camera bewaking.
Voor deze laatste punten willen we tijdens de verbouwing al de juiste voorzieningen treffen.
Zoals jullie begrijpen zijn onze plannen groot, maar wel noodzakelijk ons inziens. We kunnen dit echter niet zonder jullie hulp!!
We beginnen zaterdag 17 en 24 januari in de ochtend. De overige datums zijn afhankelijk van de planning en vorderingen van de aannemer.
En we willen deze hulp dan ook belonen volgens het nieuwe taken-punten systeem. Vanaf heden staan er een aantal klusochtenden en -middagen open op onze Clupapp -> Diensten. Hiermee kun je dus al je eerste punten halen voor dit jaar en hopen we voor de voorjaarscompetitie klaar te zijn.
Schrijf je in en heb je vragen, app of bel met Jean-Pierre 06-28250974. Bennie 06-30539178 of Eddy 06-27095608.
Namens het bestuur en de werkgroep verbouwing,
Nieuwscategorieën